Your privacy is important to us. This website uses cookies to enhance user experience and to analyze performance and traffic on our website. By using this website, you acknowledge the real-time collection, storage, use, and disclosure of information on your device or provided by you (such as mouse movements and clicks). We may disclose such information about your use of our website with our social media, advertising and analytics partners. Visit our Privacy Policy and California Privacy Disclosure for more information on such sharing.
Surveyor invites you to take the road less traveled...and make it all the difference.
We invite you to see why Surveyor is the "Best Constructed, Most Turn-Key Ready-to-Go" travel trailer on the market. Please check out our detailed Construction Cutaway Poster and feel free to download flyers about exceptional features like; Azdel Composite Panels, PVC Roofing, Lippert Axles, Lionshead Tires, and more! Take a moment to watch our High Definition 3D Virtual Tours and or walk around Videos of models led by our own Regional Sales Managers!
Annually a Top 10 selling brand in North America, and as high a percentage of "repeat buyers" as any travel trailer in the industry - the more you compare Surveyor, the better we look!
Thank you for visiting our Website!
"We Don't Stop Playing Because We Grow Old, We Grow Old Because We Stop Playing" - George Bernard Shaw
Same quality craftsmanship as built in every Surveyor; Legends have just a few less standard features & options to offer the "Best Value Trailer" in the industry. Every floorplan is carefully examined to be fashionably appealing, but most importantly, to ensure your best camping experience!
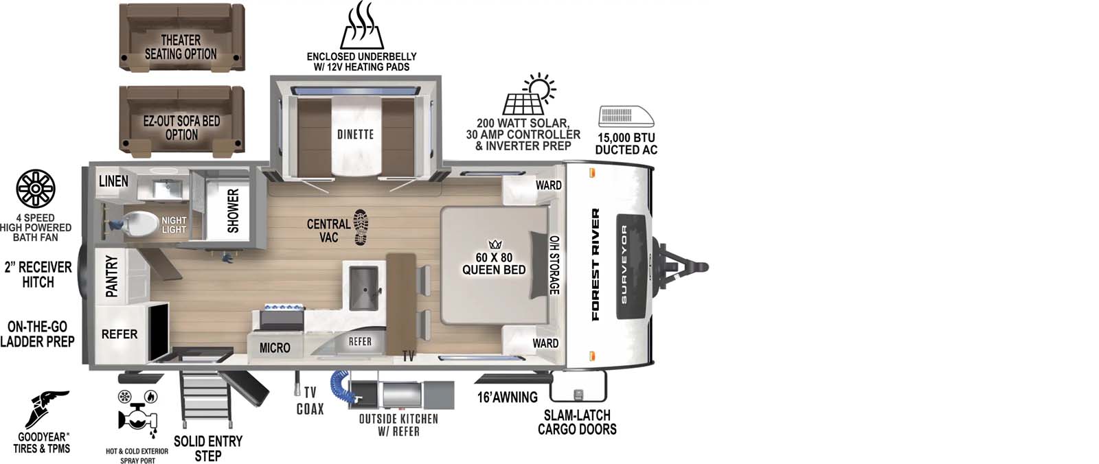
Sub-4s start below 4,000 lb. and are packed with fun! Designed for those wanting their own "Bungalow" on wheels; shorter, lighter, living an active on-the-go lifestyle, without having to compromise "Comforts." Loaded with features, these "Big 7" stand out among the crop of small trailers out there: 10 cu ft Res refer, 60 x 80 Queen Bed, 15K AC, Slow Close Shower Door, Morryde 2.0 Platform Entry Steps, Outside Griddle/Prep Shelf & Spray Port, and Solar Panel! Sub-4s allow you to live like John Muir said, "I went into the Forest to lose my mind, and find my soul"
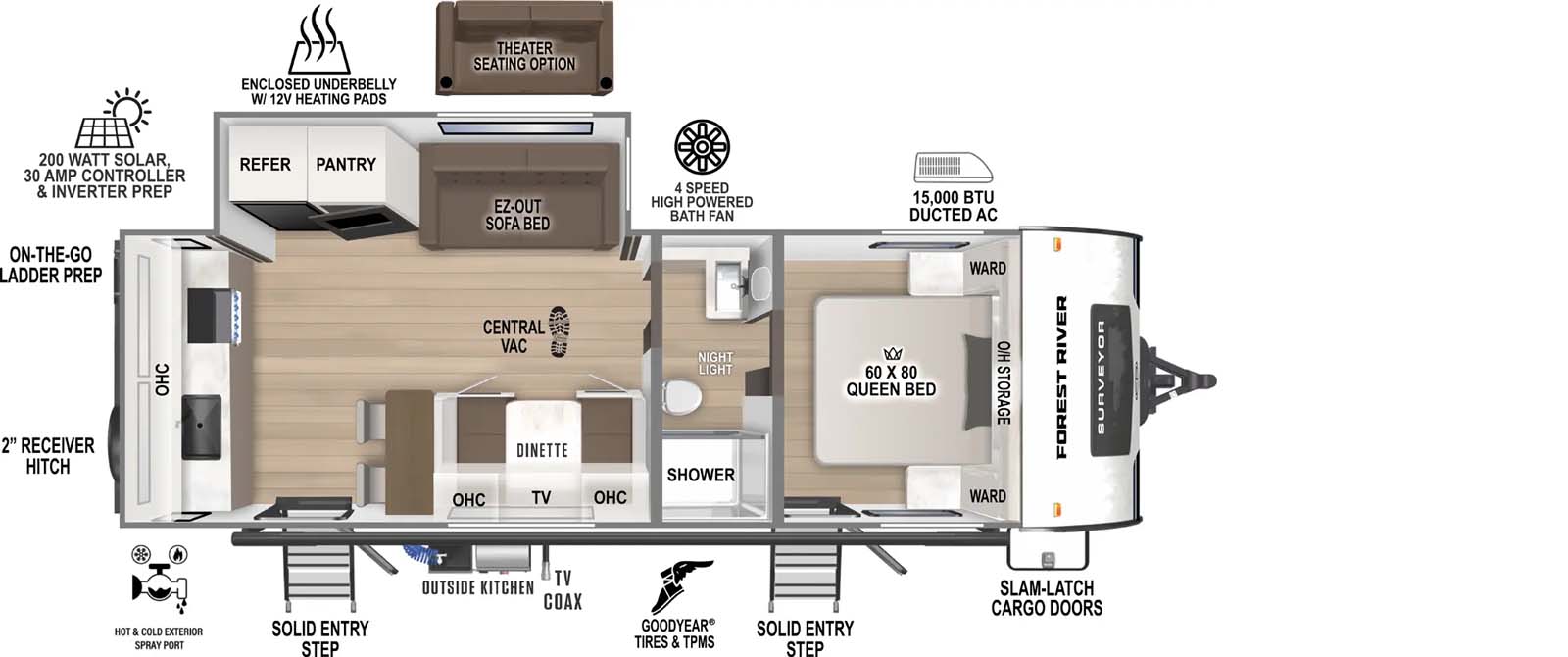
Legend Murphy Bed Models are better designed and the smartest use of space in order to tow a shorter trailer that has both a dinette & sofa. They come equipped with the super-easy-to-use "Latch & Catch" system for operation of our True Queen Size 60" x 80" Bed (as compared to the Competitions smaller 60" x 74" Bed)!
 
        Please sign up below if you would like to receive notifications when we make updates to this brand. Or, if you only want updates on a particular floorplan, you can select to be updated on each one individually.